(407) 798-8717
  • Interiors
    • Home Renovation
    • Kitchen Cabinets & Cabinetry
    • Design & 3D Planning
    • Windows & Doors Installation
    • Bathroom Remodeling
    • Mobile Homes
  • Exteriors
    • Exterior Painting & Siding
    • Additions & Porches
    • Windows & Doors Installation
    • Roofing
    • Mobile Homes
  • Cabinetry
    • Kitchen Cabinets & Cabinetry
    • Cabinet Remodeling & rePainting
    • Design & 3D Planning
  • Portfolio
  • Contacts
project

DEVANG

Modern Frameless Custom Kitchen — Design & Cabinet Installation

This custom kitchen project for Devang was completed as a full-service solution, including kitchen design development, layout approval, and professional cabinet installation. The space was designed as a modern frameless kitchen with an L-shaped cabinet layout and a large functional island, creating an efficient workflow and well-defined cooking and preparation zones.
The project features custom frameless kitchen cabinets with clean flat-panel fronts and consistent reveals, delivering a precise contemporary look. During the kitchen cabinet installation, all base and tall units were carefully leveled and aligned, island geometry was verified, and appliance openings were prepared to match the approved kitchen design.
To ensure long-term durability, the project included proper cabinet anchoring, hardware alignment, and final fit-and-finish checks. The result is a modern custom kitchen that reflects the original design intent, combining functionality, clean lines, and reliable craftsmanship.
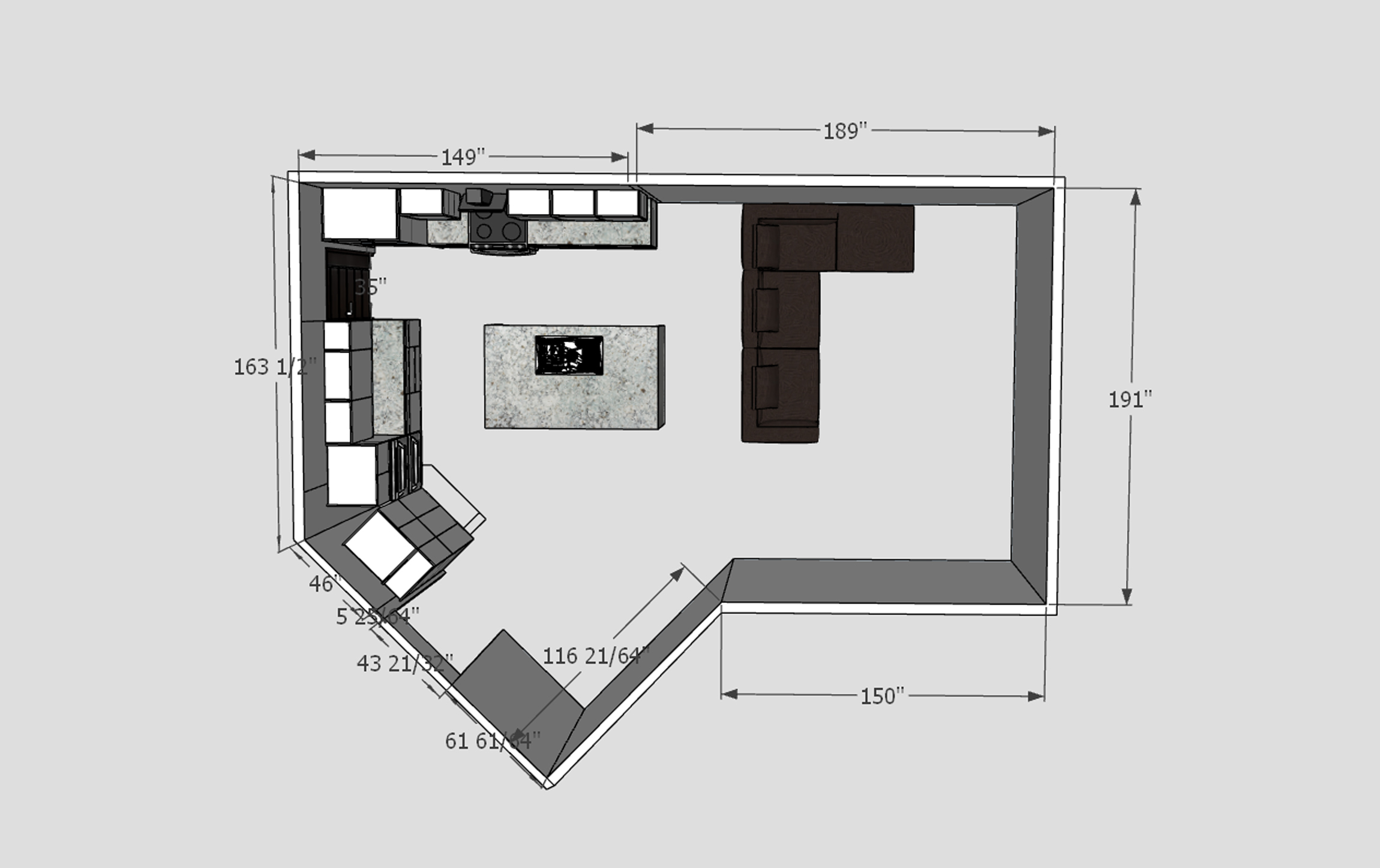
Devang kitchen layout before custom installation
Devang kitchen layout before custom installation
Kitchen layout before custom kitchen cabinet installation
Devang kitchen layout before installation
Devang kitchen layout before installation
3D kitchen layout before custom kitchen cabinet installation
Devang kitchen island layout before custom installation
Devang kitchen island layout before custom installation
3D kitchen island layout before custom kitchen cabinet installation
Devang kitchen layout with island and appliances before installation
Devang kitchen layout with island and appliances before installation
3D kitchen layout with island and appliances before custom kitchen cabinet installation
Devang kitchen renovation before cabinet installation
Devang kitchen renovation before cabinet installation
Kitchen renovation before custom kitchen cabinet installation
Devang kitchen cabinet installation in progress
Devang kitchen cabinet installation in progress
Custom kitchen cabinet installation in progress before final finish
Devang base kitchen cabinets installation in progress
Devang base kitchen cabinets installation in progress
Base kitchen cabinets installation in progress before final kitchen completion
Devang custom kitchen installation near completion
Devang custom kitchen installation near completion
Custom kitchen installation near completion with frameless cabinets and island
Devang custom kitchen cooking area with backsplash and hood
Devang custom kitchen cooking area with backsplash and hood
Custom kitchen cooking area with gas cooktop, modern backsplash, and under cabinet lighting
Devang modern frameless kitchen with island and lighting
Devang modern frameless kitchen with island and lighting
Modern frameless kitchen with large island, built in appliances, and accent lighting

Want the same result for your home?

Every project is unique, but the process stays the same.
Tell us about your space, goals, and budget — we’ll help you plan the right solution.

Serving Central Florida homeowners • No spam • One call or message from our team
Explore More
Dive deeper into what we offer and see how our solutions can meet your needs.
© 2026 Baccuma. All rights reserved.

All construction work requiring licensing is performed through our licensed and insured contractor partners.
Specialty trades such as plumbing, electrical, HVAC, and structural work are completed by properly licensed subcontractors in accordance with Florida law.
baccuma.constr@gmail.com
(407) 798-8717
  • Interiors
    • Home Remodeling
    • Kitchen Cabinets & Cabinetry
    • Design & 3D Planning
    • Windows & Doors Installation
    • Bathroom Remodeling
    • Mobile Homes
  • Exteriors
    • Exterior Painting & Siding
    • Additions & Porches
    • Windows & Doors Installation
    • Roofing
    • Mobile Homes
  • Cabinetry
    • Kitchen Cabinets & Cabinetry
    • Cabinet Remodeling & rePainting
    • Design & 3D Planning
  • Portfolio
  • For partners
  • Contacts

  • Legal Information (Privacy, Terms, Licensing)